Brünnen, Bern

Um diese Rigidität aufzubrechen werden kleinere, differenzierte Einheiten geschaffen mit gestalterischen und bautechnischen Modifikationen. Als Resultat entsteht eine Vielfalt in der Fassadengestaltung und den Grundrissen an einem und demselben Bauwerk. Eine "organische" Komponente wird dadurch eingefügt: Der allem Natürlichen innewohnende Geist des "Unikats".

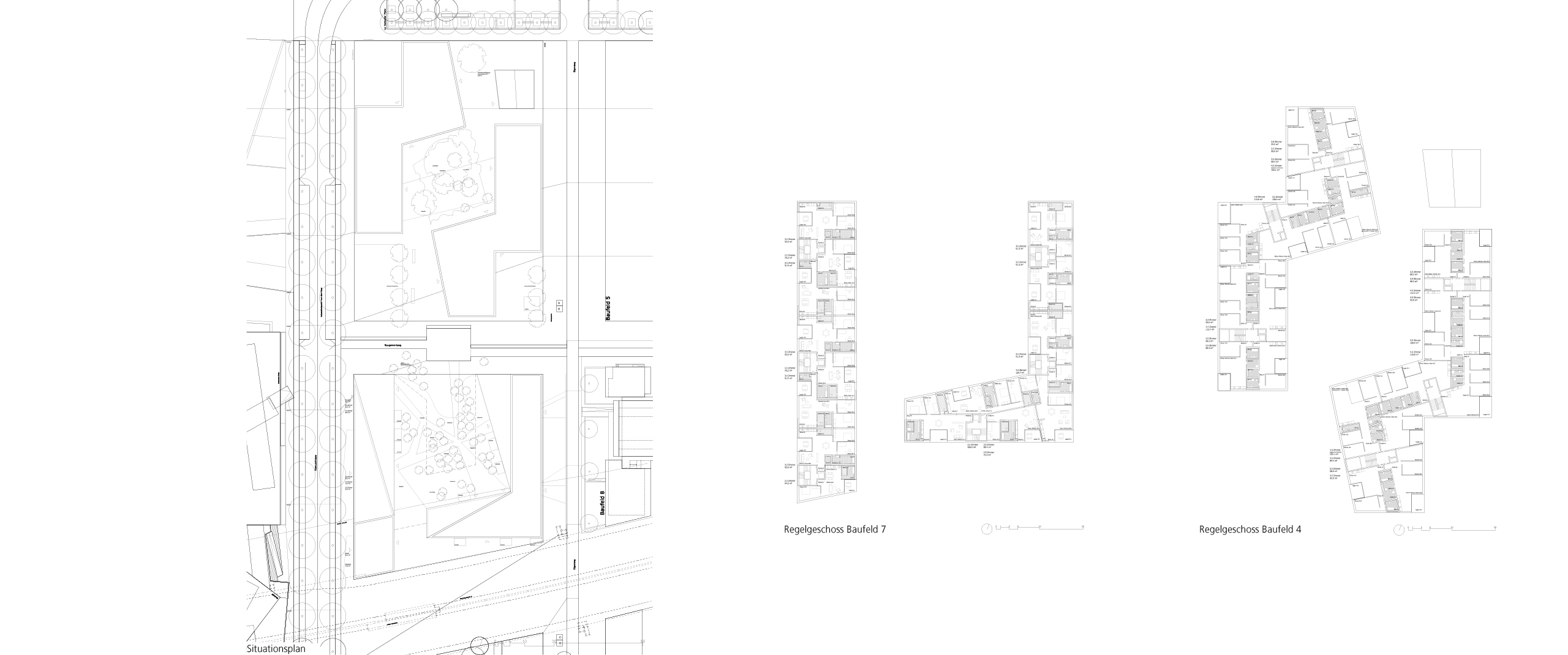
Die beiden Baufelder 4 & 7 weisen ein Ensemble aus 4 Einzelbauten aus. Der östliche Neubau ermöglicht Raum für ein Ausweiten der Parkanlage und setzt auf dessen Westseite mit einer Überhöhung einen Akzent. Dieser bildet den Zugang zum Einkaufszentrum Westside, der eigentlichen Attraktion des ganzen Areals.

Zwischen diesem Kopf mit seiner Verlängerung entlang der Ramuzstrasse und dem L-förmigen Riegel spannt sich ein grosser leicht verzogener Hof auf. Zur Strasse hin abgeschirmt und zum Innenhof geöffnet formieren diese beiden Bauten eine Klammer, die ein Stück artifizielle Natürlichkeit (Moorbeete) birgt. Über die Verdrehung einzelner Geschosse öffnet sich der Hof nach oben.

Das Baufeld 4 reagiert simultan: Hier ist es jedoch zweimal derselbe Gebäudekörper, der - gegeneinander verdreht - einen Hof aufspannt. Dieser wird mit Gehölzen und Bäumen dicht bepflanzt und tritt somit nicht als Hohlform, sondern "Grüne Masse" in Erscheinung. Ähnlich einer bewaldeten Schlucht fungiert dieser Hof als diagonale Abkürzung im etwas andersartigen "Grosstadtjungle"

STRUKTUR
Die Gebäudestruktur setzt sich aus Zellen installierter Räume (Bäder, Reduits, Küchen, WCs) zusammen zwischen denen der "eigentliche" Wohnraum hin und her mäandriert. Diese Zellen übernehmen gleichzeitig die Tragfunktion. Geschossdecken lagern auf den abwechslungsweise ost- / westseitig angeordneten Minikernen. Dazwischen spannen sich stützenfrei die Räume auf. Gleichmässig über den Grundriss verteilte Schächte in den Zellen garantieren eine sehr hohe Flexibilität bei zukünftigen Aufteilungsänderungen. Unsere Gedanken gehen zeitlich weiter als die Ideen von "Schaltzimmern". Wir haben uns die ganze Lebensdauer eines Gebäudes vor Augen geführt. Flexibilität und die Möglichkeit, spätere Eingriffe einfach vorzunehmen, erhöhen aus unserer Sicht den Gebrauchswert und vor allem die Gebrauchsdauer eines Objektes (graue Energie - Ökologie).

Art Projektwettbewerb
Bauherr Einwohnergemeinde Bern
Projektteam roger.huwyler dipl.arch.eth
Planung 2011